Fletcher House Renovation, Middlebury, VT

Renovation of a Middlebury College apartment
#

MIDDLEBURY COLLEGE FLETCHER HOUSE | MIDDLEBURY, VT

More Info

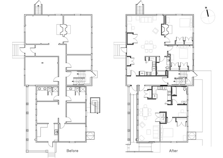
Originally built in the 1860s as a private residence, and used as a fraternity house for many years, the Fletcher House Renovations converted a 24-bed, 8,700 sf, timber framed, dormitory-style house into five faculty/staff apartments.

The apartments are a combination of one and two bedrooms, with one of the apartments being fully ADA accessible while all others comply with Vermont accessibility codes. A new accessible ramp and main entrance will be integrated into the current porch location.

Subject to review by the Vermont State Division for Historic Preservation, we maintained existing openings from the original historic fabric and eliminated previous renovations that detracted from the historic character of the building.

The renovation included such sustainable features as FSC certified wood flooring. Where possible existing walls were left in place to mitigate demolition waste and the unnecessary purchase of new material. We completely upgraded the MEPFP systems in conjunction with a thorough analysis of the building envelope - including blower door and fog testing. From this testing, we developed and specified an allowable air infiltration rate for the new envelope. We also tested the envelope during construction to ensure that the specified performance levels had been met.

The entire perimeter of the foundation was excavated, a new one-sided concrete wall was poured over the existing laid up stone foundation, and then a new exterior drainage system was installed in order to reduce moisture in the basement.


Size:                 8,700 sf

Completed:       August 2011

pdf download