Acton House Renovation, Acton, MA

Architectural renovation and addition to the remains of a farmhouse constructed in 1856
#

ACTON HOUSE RENOVATION | ACTON, MA

More Info

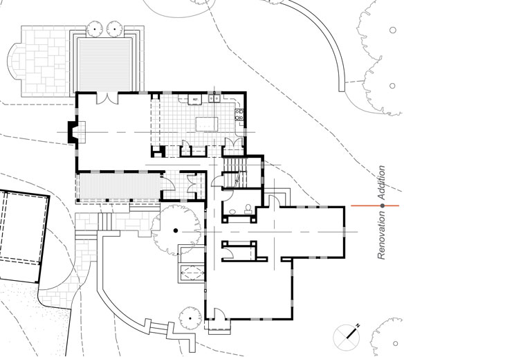
The Acton House is a renovation and addition to the remains of a farmhouse originally constructed in 1856 and whose ell wing was destroyed in the Hurricane of 1938 and never reconstructed. Over the subsequent years, a series of unsympathetic modifications and a general lack of upkeep stripped the interior and exterior of their original character.

The new design is a variant of the New England farmhouse typology – a main wing with a series of additions without stylistically copying the original. A new ell wing with porch replaces the original although it is set further back in the site to provide a degree of visual and acoustical privacy from the now busy street. The ell contains the more open, modern living areas; the renovation of the existing maintains a more discrete separation of rooms. Together, the two wings frame a south facing elevated entrance courtyard bordered by an existing post and beam garage/barn.

Inside, a new, open central staircase is the nexus for both old and new. A circulation spine wraps around the south facing side of the house adjacent to the exterior courtyard. Multiple openings in the spine allow for natural light to filter into the rooms beyond. Openings terminate axes and are arranged to dissolve the distinction between inside and outside and extend the perception of the space.

On the exterior, as one moves around the site, the understanding of the house and its scale unfolds. The design aims to reduce the overall sense of scale of the house through a combination of multiple forms, openings, materials, patterns, and colors - particularly on the public front facades. Yellow, horizontal clapboards on the lower part of the facade are separated from white, vertical matchboards on the upper part by a continuous stringcourse. The stringcourse engages and is interrupted by the double-hung windows of the second floor, allowing a balance of vertical and horizontal. The fenestration’s vertical emphasis counterbalances the linear form of the house.


Size:                 1,842 sf addition
                         1,340 sf renovation

Completed:       2006

pdf download